Tennessee Real estate property search
RESIDENTIAL | COMMERCIAL | INVESTMENTS | LAND
600 Sun Bear LnMount Pleasant, TN 38474




Mortgage Calculator
Monthly Payment (Est.)
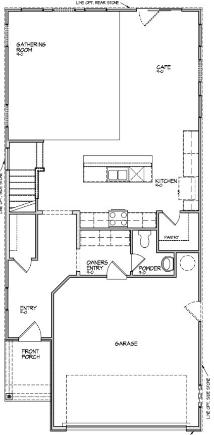
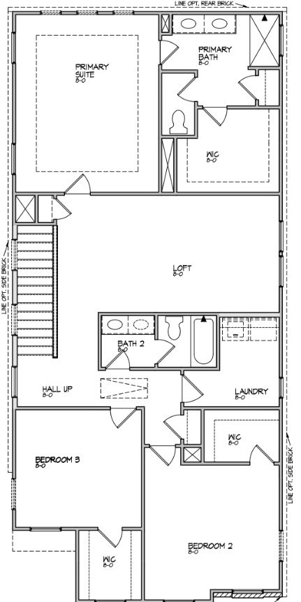
$1,893The Juniper Floor Plan is a thoughtfully designed two-story home that offers a smart balance of functionality, comfort, and modern style. With three bedrooms and two and a half bathrooms, this home is ideal for families or homeowners who value well-defined living spaces paired with open, inviting areas for gathering and entertaining. All bedrooms are conveniently located on the upper level, creating a private retreat separate from the main living areas. The primary suite is spacious and welcoming, featuring a large walk-in closet and a well-appointed en-suite bathroom designed for relaxation and everyday comfort. Two additional bedrooms provide flexibility for family members, guests, or a home office, while a versatile loft area adds valuable extra living space—perfect for a media room, play area, homework station, or second family lounge. A convenient upstairs laundry room enhances daily efficiency by keeping chores close to the bedrooms. The main level is designed for both comfort and practicality. A welcoming owner’s entry creates an organized transition space, complete with a storage closet for coats, shoes, and everyday essentials. The heart of the home is the large, open kitchen, offering generous counter space, abundant cabinetry, and a layout that flows seamlessly into the expansive gathering room and café area. This open-concept design creates a warm, connected environment ideal for entertaining guests, hosting family meals, or enjoying relaxed evenings at home. Thoughtful storage solutions throughout the home support organization and ease of living, while the separation of living and sleeping spaces enhances privacy. With its flexible layout, modern design, and family-friendly flow, the Juniper Floor Plan delivers everyday comfort and long-term livability in a home that adapts to your lifestyle. Now is the time to act—get in before the Grand Opening. Pre-Grand Opening incentives are at $40,000 with preferred lender.
| 2 days ago | Listing first seen on site | |
| 2 days ago | Listing updated with changes from the MLS® |
Listings courtesy of Realtracs as distributed by MLS GRID
Based on information submitted to the MLS GRID as of 2026-01-28 06:47 PM UTC. All data is obtained from various sources and may not have been verified by broker or MLS GRID. Supplied Open House Information is subject to change without notice. All information should be independently reviewed and verified for accuracy. Properties may or may not be listed by the office/agent presenting the information.
The Digital Millennium Copyright Act of 1998, 17 U.S.C. § 512 (the “DMCA”) provides recourse for copyright owners who believe that material appearing on the Internet infringes their rights under U.S. copyright law. If you believe in good faith that any content or material made available in connection with our website or services infringes your copyright, you (or your agent) may send us a notice requesting that the content or material be removed, or access to it blocked. Notices must be sent in writing by email to DMCAnotice@MLSGrid.com.
The DMCA requires that your notice of alleged copyright infringement include the following information: (1) description of the copyrighted work that is the subject of claimed infringement; (2) description of the alleged infringing content and information sufficient to permit us to locate the content; (3) contact information for you, including your address, telephone number and email address; (4) a statement by you that you have a good faith belief that the content in the manner complained of is not authorized by the copyright owner, or its agent, or by the operation of any law; (5) a statement by you, signed under penalty of perjury, that the information in the notification is accurate and that you have the authority to enforce the copyrights that are claimed to be infringed; and (6) a physical or electronic signature of the copyright owner or a person authorized to act on the copyright owner’s behalf. Failure to include all of the above information may result in the delay of the processing of your complaint.
Did you know? You can invite friends and family to your search. They can join your search, rate and discuss listings with you.